Charmante 2,5-Zimmer-Dachgeschosswohnung für Kapitalanleger in Balingen-Frommern

Zurück

Objektbeschreibung

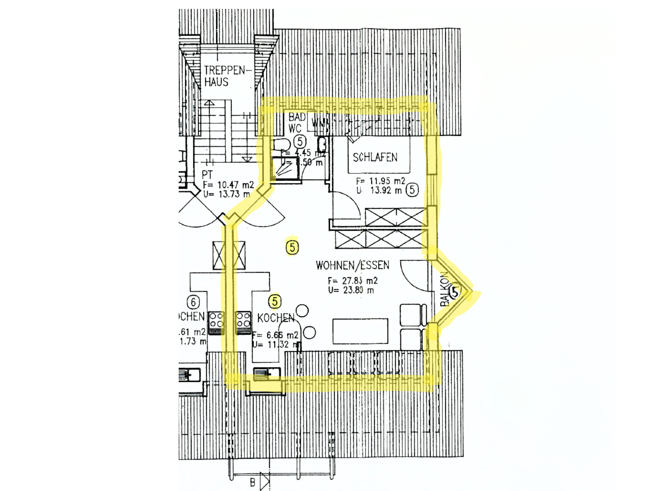
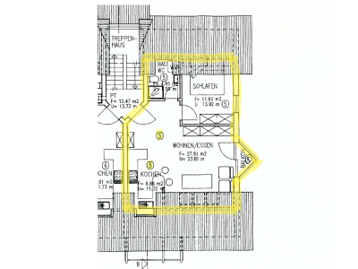
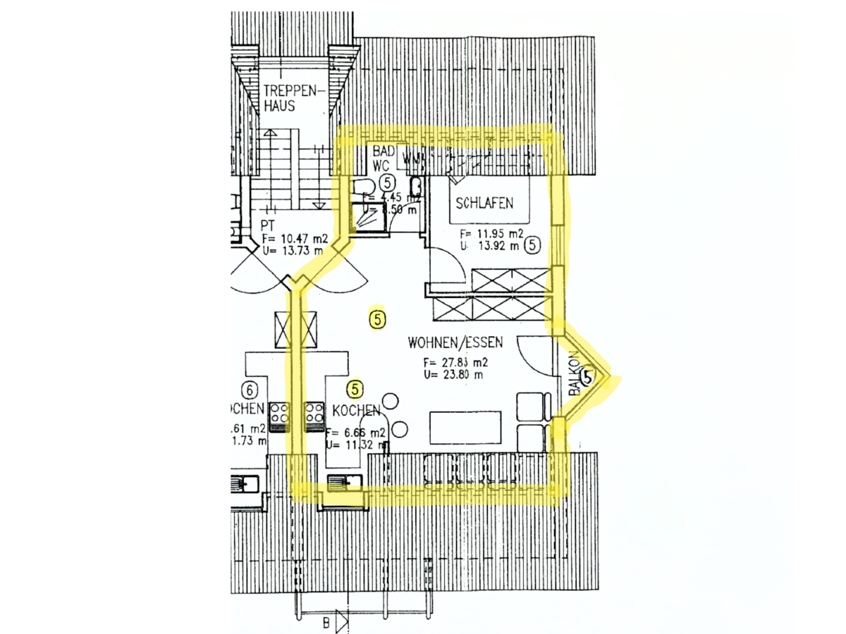
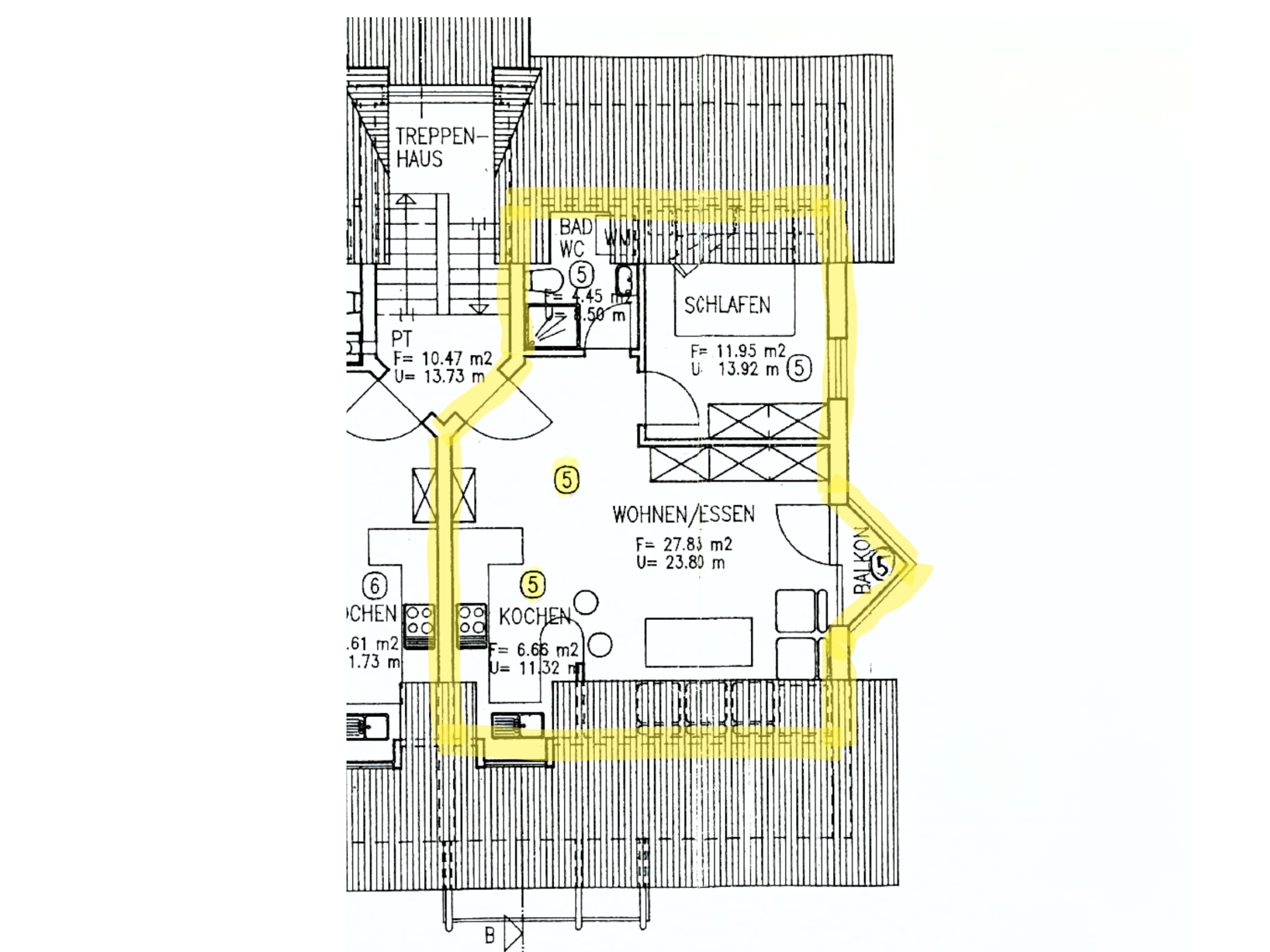
Diese charmante und gut geschnittene 2,5-Zimmer-Dachgeschosswohnung befindet sich in einem gepflegten 6-Familienhaus in ruhiger Wohnlage im beliebten Balinger Stadtteil Frommern. Die Wohnung mit ca. 51 m² Wohnfläche (zzgl. Balkon) ist nach Süden ausgerichtet und bietet dank des Ostbalkons angenehme Sonnenstunden am Morgen.
Das im Jahr 1991 erbaute Gebäude befindet sich in einem gepflegten Zustand. Zur Wohnung gehören ein separater Kellerraum sowie ein Tiefgaragenstellplatz mit direktem Zugang zum Haus. Zusätzlich stehen eine gemeinschaftliche Waschküche und ein Trockenraum zur Verfügung.
Die Wohnung ist seit Januar 2025 zuverlässig vermietet – der Mietvertrag wurde auf drei Jahre geschlossen. Sie eignet sich daher ideal als Kapitalanlage.


Ausstattung

  • Laminatböden in Wohn- und Schlafbereichen
  • Einbauküche
  • Tageslichtbad mit Fenster
  • Holzfenster
  • Ostbalkon mit Blick ins Grüne
  • Wasch- und Trockenraum im Keller
  • Tiefgarage

Lagebeschreibung

Der Stadtteil Frommern ist mit rund 5.000 Einwohnern der größte Stadtteil der Großen Kreisstadt Balingen (ca. 35.000 Einwohner) und zeichnet sich durch eine ausgezeichnete Infrastruktur aus. Schulen (u.a. Walddorfschule, Hauptschule, Realschule), Kindergärten, Ärzte, Apotheken, Banken, Bäcker, Metzger sowie ein Edeka-Markt befinden sich in unmittelbarer Nähe.
Frommern ist durch einen eigenen Bahnhof optimal an den öffentlichen Nahverkehr angebunden. Regelmäßige Zugverbindungen nach Tübingen und Sigmaringen sowie ein gut ausgebautes Busnetz sorgen für eine hervorragende Mobilität. Die Kernstadt Balingen, in der aktuell die Gartenschau stattfindet, ist schnell erreichbar.


Details

Zimmer
2,5
Etagen
Dachgeschoss
Wohnfläche
51
Zustand
vermietet
Baujahr
1991
Kaufpreis
€ 144.500
Provision
3,57% inkl. MwSt.
Nebenkosten
396 / Monat
Energieausweis
Verbrauchsausweis: 136 kWh/(m²a)

Ihre Anfrage


Hinweise

Oben stehende Angaben sind ca. Werte und beruhen auf Informationen der Eigentümer. Haftung für deren Richtigkeit und Vollständigkeit kann von uns deshalb nicht übernommen werden. Die angegebenen Kaufpreise sind zzgl. Kaufnebenkosten.

Menü